太原[切换]
  • 装修热线:0351-7080011
  • 巧装家
入驻巧装家

高品质互联网家装平台

老房研究院

老房装修文化艺术节中国老房装修标准指南

已为4057位业主提供老房装修服务

免费预约 开工即省30%
  • 您的称呼
  • 手机号码
  • 所在小区
预约热线:0351-7080011
为了你的利益及我们的口碑,你的隐私将被严格保密。
x 点击进入太原站>>
选择其他城市:

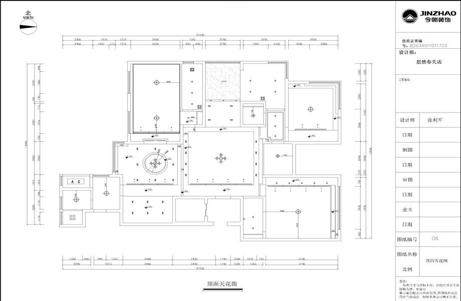
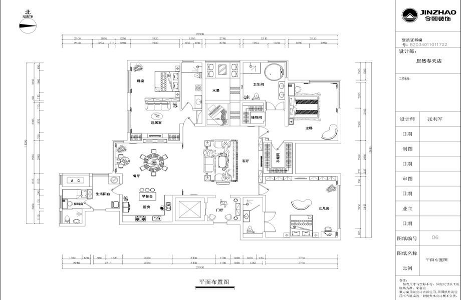
摩天石310平米现代简约风格

小区:
户型:
复式LOFT
面积:
310.0平米
风格:
现代简约
预算:
20.00万元
设计理念:
在城市之巅,汇聚生活之美,居高临下,在夕照洒落之际,沐浴于贯穿纵轴的金黄阳光下,临窗远眺,著繁忙的都会生活,当夜幕低垂,唯有此处,得以坐拥繁星落入凡尘的至美,在城市一隅,独享入世、脱俗的生活之美本案没有过多的装饰吊顶,及背景造型。反而充分利用了空间。比如:餐厅酒柜及客厅电视墙书柜,都是利用了墙体的厚度。从而达到了在满足功能的基础上做到最大程度的简洁。白色乳胶漆墙面、灰色地面使整个空间显得沉稳优雅!对于现代社会的简约风格来讲,它的外形简洁,功能强,强调室内空间形态和屋捡的单一性以及抽象性。所以往往我们看到的现代简约风格都是非常简洁、大气、自然。
分享到:
张利军

张利军编号:UZ_2825

级别:

他承诺:
  • 所接的工地均经过国家级的标杠工程施工,平台监理全程严苛监工,15项验收标准,不合格砸掉重做
  • 所接的工地均经过国家级的标杠工程施工,平台监理全程严苛监工,15项验收标准,不合格砸掉重做
  • 从环保设计,环保材料,环保施工,环保检测四个方面要求,承诺环保不达标全额退款
  • 业主提交投诉,30分钟内受理、24小时内上门确认、48小时内协调解决

山西太原

从业12年 / 山西太原人 / 北京军地专修学院

  • 本月预约:0个
  • 成交记录 :21条
  • 作品数:20个
效果图 施工图
-摩天石310平米现代简约风格
-摩天石310平米现代简约风格
-摩天石310平米现代简约风格
-摩天石310平米现代简约风格
-摩天石310平米现代简约风格
-摩天石310平米现代简约风格
-摩天石310平米现代简约风格
摩天石310平米现代简约风格

摩天石310平米现代简约风格

我家按此装修 需要多少钱呢

设计案例点评

加载更多